GULRAJ BUILDING物件ID:37134

  • 駅近
  • 24時間使用可

賃貸条件

階数
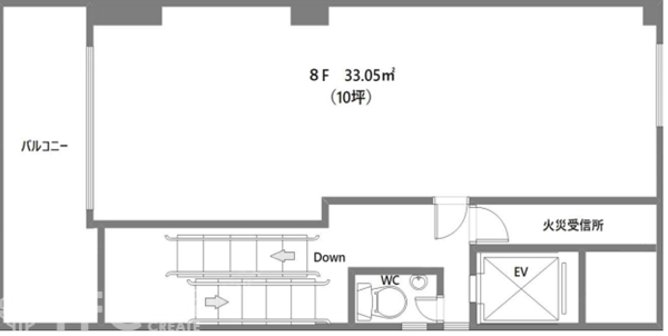
8階
面積
10坪(33.05㎡)
賃料
100,000円
礼金
2ヵ月
管理費
-
預託金
2ヵ月
償却費
ー 
更新料
ー 
契約期間
相談
入居日
相談 
備考
指定賃料保証会社要加入
電気基本料金5000円
その他
2007年リニューアル工事
2020年外壁塗装済
エレベーター
内装は事務所仕様、原復も同様
ワンフロアワンテナント
最上階の部屋になります

※賃料等は税別表示です。

物件情報

物件名
GULRAJ BUILDING
住所
大阪府大阪市中央区南本町1-5-14
竣工
1968年1月
建物規模
鉄骨鉄筋コンクリート造 地下 1階 地上 8階建 
主要設備
駅近 
特徴
物件を見学したい、空室情報など
物件のお問い合わせ
0120-661-755 受付時間|平日10:00~19:00
物件ID【37134】をお伝えください
お問い合わせから10分で返信いたしますこの物件を問い合わせる

交通アクセス

  • ・ 堺筋本町駅 徒歩3分
5秒で簡単資料請求
お名前
Email
TEL
WEB非公開物件がございます
たくさんのオフィス物件が公開されている中で流通する物件は極僅か。
なかには解約予告前に相談に来る物件や、解約時の原状回復前に居抜きなどでお引渡しできる物件もございます。
"大阪オフィス"の賃貸情報なら、なんでもお任せください!!
ご来店も大歓迎です
ご来店や御社事務所にて対面でのお打ち合わせをおススメしております。
お客様のご要望を是非お聞かせください!
現事務所の解約スケジュールや移転時期、内装工事、各種手続きのタイミング、引渡しまで全てTFCがご提案いたします。
大阪の賃貸不動産は、TFCのエキスパートにお任せください!!

近くのエリアで探してみる

エリア
大阪エリア 本町
最寄り駅
堺筋本町

GULRAJ BUILDINGと同等の坪数の物件

GULRAJ BUILDINGと同等の賃料の物件

LINEで最新情報を配信中
気軽に相談可能です