TSHG淀屋橋ビル物件ID:34887


















- 24時間使用可
- 新耐震基準
- 個別空調
- 機械警備
- 男女別トイレ
- EV2機以上
賃貸条件
- 階数
- 6階
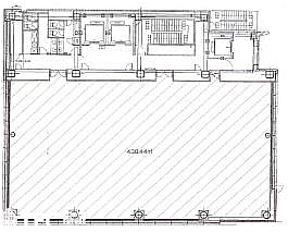
- 面積
- 132.62坪(438.4㎡)
- 賃料
- 2,652,400円
- 礼金
- -
- 管理費
- -
- 預託金
- 12ヵ月
- 償却費
- 相談
- 更新料
- 相談
- 契約期間
- 相談
- 入居日
- 2025年4月
- その他
- 淀屋橋駅近く!アクセス抜群でオススメです!
※賃料等は税別表示です。
物件情報
- 物件名
- TSHG淀屋橋ビル
- 住所
- 大阪府大阪市中央区今橋2-6-14
- 竣工
- 2008年1月
- 建物規模
- 鉄骨造 地下2 階 地上 10階建
- 主要設備
- エレベーター2基以上 個別空調 24時間利用可 機械警備 男女別トイレ
- 特徴
- -
物件を見学したい、空室情報など
物件のお問い合わせ
物件のお問い合わせ
0120-661-755 受付時間|平日10:00~19:00
物件ID【34887】をお伝えください
お問い合わせから10分で返信いたしますこの物件を問い合わせる 交通アクセス
- ・ 北浜駅 徒歩4分
- ・ 淀屋橋駅 徒歩5分
TSHG淀屋橋ビル 募集中の区画
階数 | 坪数 | 賃料 | 管理費 | 坪単価 | 預託金 | 入居日 |
---|---|---|---|---|---|---|
7階 | 132.62坪 | 2,652,400円 | - | 20,000円 | 12ヵ月 | 2025年4月 |
5秒で簡単資料請求